How dwellings like this get classes as RVs and not homes is that they come in under 10,000 pounds (but not $10,000 dollars, unfortunately).
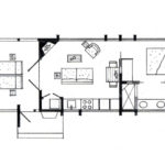
Park model RVs are built for people who want more space than a tiny home, but this one seems to have a good layout for space, but is small in size (400 square feet).
It’s called “The Escape Cabin,” and it is classed as an RV. You can move it around — it has wheels — and soon will be available to everyone (who has $80,000).
It looks like it does partly because it was designed not as an RV but as a cottage, and is finished with high quality cottage fixings. It has R48 celiings, R40 floors and R28 walls.
The bedroom allows for a king-size bed and the bathroom has a full-sized bathtub. Not bad for a tiny home. Some tiny homes and tiny cottages have only little cubicles in them, especially the mobile kind. It has a fridge and stove and a high-efficiency fireplace.
And, like most small homes, it takes relatively little power to heat it (or cool it).
Would you like to own an Escape Cabin on wheels?
" >








